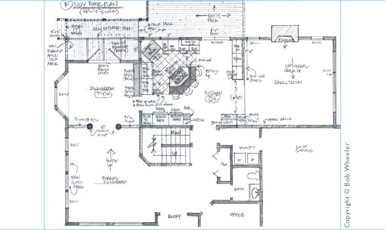
< view thumbnail drawings | < previous kitchen | next kitchen > home | services + pricing | projects | residential plans | additions | baths | testimonials | contact