Perspective Drawings by Kitchenplans.com
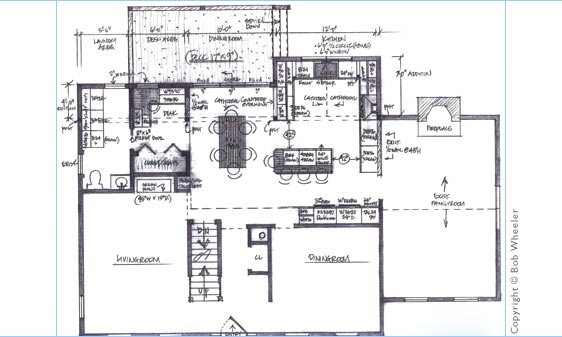
Kitchen Perspective Drawing
Kitchen